一套位于第四区最美丽的花园郊区、环境安静的家庭住宅,包含地下室、底层和二层。地块平坦,临街。围栏内有一条玄武岩铺砌的车道,可停放一辆车,如有需要,还可停放两辆车。
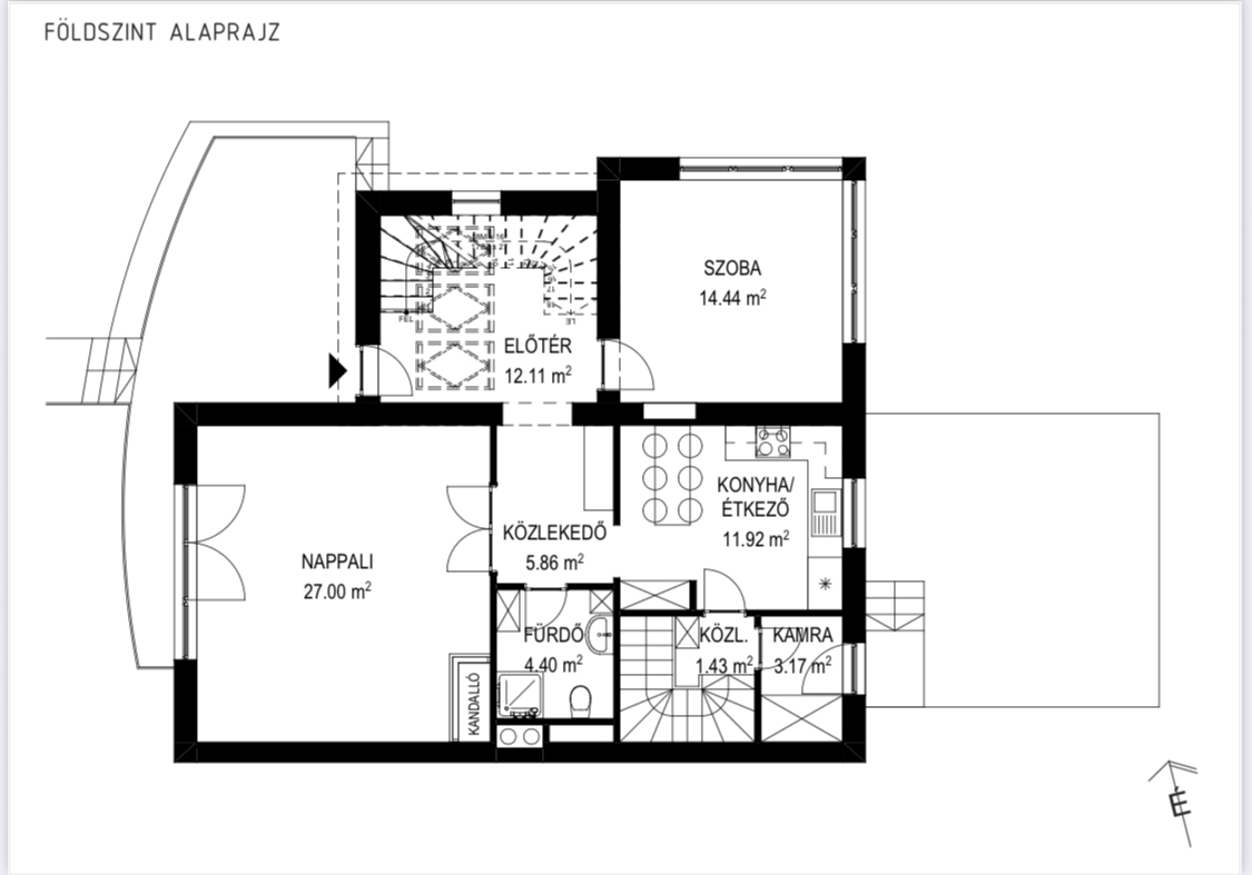
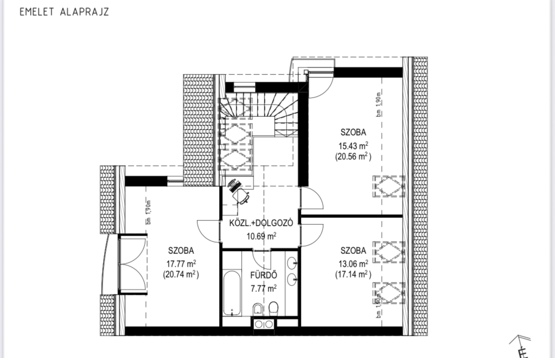
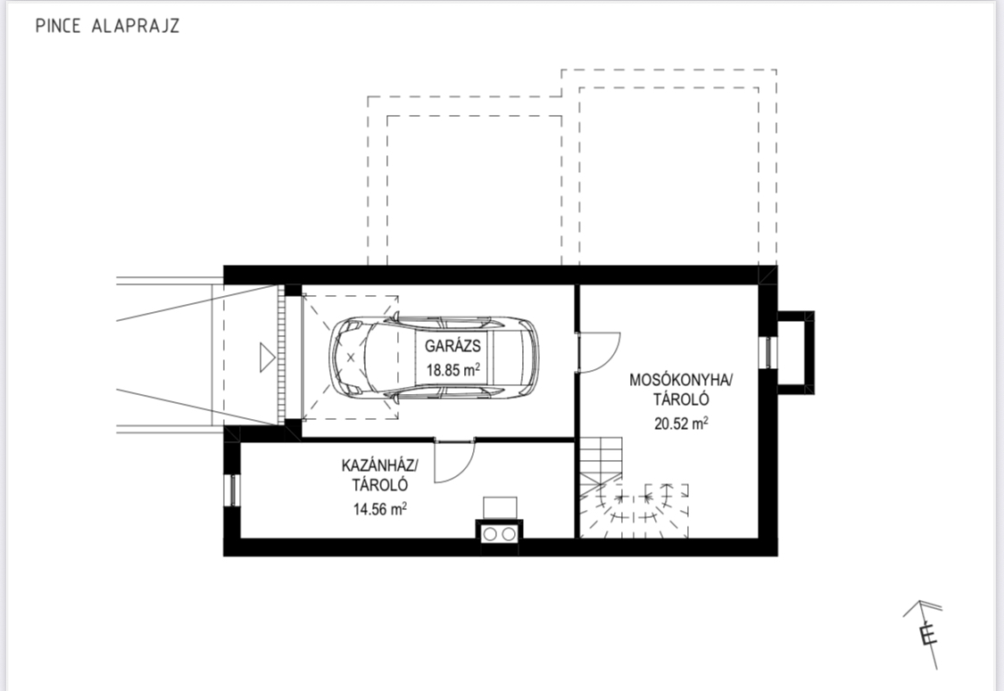
该建筑高于花园层,因此地下室的房间也设有窗户。车库长约6米。地下室设有宽敞的洗衣房、储藏室和锅炉房,锅炉房配备三相电源。车库坡道可供暖。楼梯通往底层的厨房。底层有一个宽敞的、类似衣橱的中庭式大厅,内部空间宽敞,上方设有走廊。大厅通向一个房间,可用作书房、餐厅或客房。厨房与餐桌隔开,客厅是一个带双开门的独立房间。底层设有卫生间和淋浴间。一楼的前露台朝南,阳光充足,可从客厅和大厅进入。二楼是一个45度坡度的矮墙阁楼,矮墙约1米高,可在技术和家具方面得到充分利用。二楼设有三个大房间、一个画廊书房角和一个带浴缸的房间。
外墙抹灰,门窗为木质,屋顶铺设BRAMAC混凝土瓦。墙体采用38+10厘米厚的石墨隔热层。门窗采用隔热玻璃。百叶窗为遥控铝制百叶窗。机械工程中的主要供暖设备是一台带独立水箱的冷凝式燃气锅炉。次要供暖设备是客厅里的一个壁炉。替代供暖方式是太阳能电池,可以安装在屋顶上,并具有良好的倾斜角度,合适的表面资源充足,并采用机械效率最高的屋顶。目前采用空调制冷。该房屋节能效果良好,墙体和天花板结构厚重坚固,根据目前的能源等级分类,其能源等级为“C”。
附加设施:阁楼上层设有一个未开发的工作室,面积约30平方米。总居住面积,即净建筑面积:54+80+64,共计198平方米。
总管理费用:每月59,000福林,每人每月9,800福林。
该房屋也适合有意租赁的大家庭、公司或企业总部。
學校:
購物:
