我们出售位于布达佩斯第十区,交通便利、人流密集的两层办公楼,该楼已全面翻新,总建筑面积约232平方米,技术状况良好,配备齐全的设备和家具。
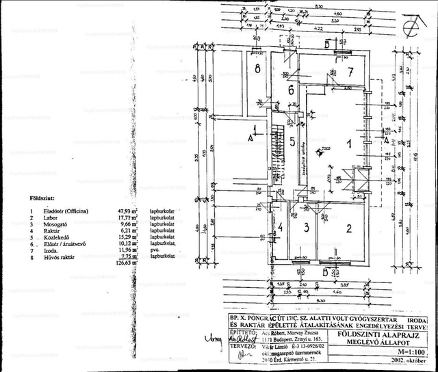
底层(118平方米):
- 明亮的临街接待区/销售区(47.93平方米)
- 独立办公空间(11.96平方米)
- 交通走廊(13.17平方米)
- 宽敞的仓库(33.58平方米)
- 可停放6辆车的私人路边停车位
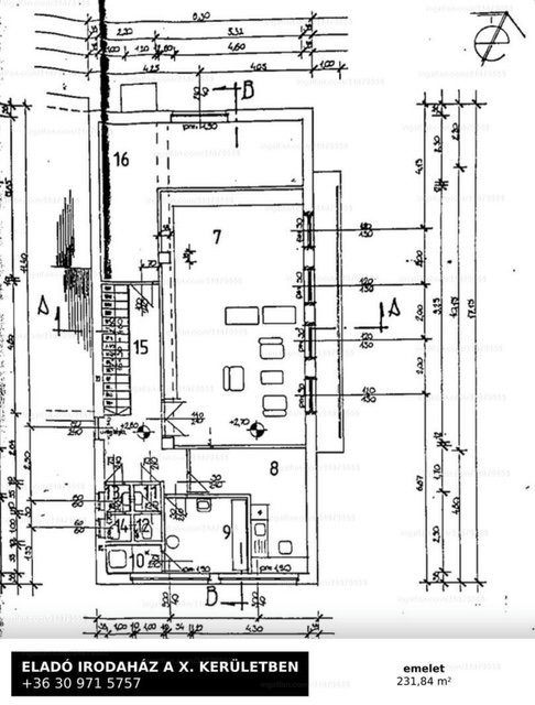
二层(约110平方米):
- 会议室(47.93平方米)
- 厨房(8.93平方米)
- 2个独立卫生间+淋浴间(2平方米)
-两间储藏室:面积分别为 24.67 平方米和 13.26 平方米
- 客厅(13.17 平方米)
设备及其他设施:
- 全新燃气锅炉,现代供暖系统
- 所有房间均采用全新塑料门窗
- 已安装报警系统
- 局域网和电网已全部安装
- 安全门,窗户装有防护栏
- 平屋顶
- 院内设有 4 个私人停车位
- 可上锁、安全、明亮的房间
- 底层入口设计
价格包含:所有办公家具、设备、报警器、厨房家具 - 您只需入住即可!欢迎电话咨询。