主要特点:
• 千兆光纤互联网
• 带热水储存的冷凝式燃气锅炉
• 制冷/供暖:6台分体式空调
• 配备运动、断裂和开启传感器的全套报警系统,覆盖每个房间、窗户和门,并提供15分钟安全离开保证
• 智能手机控制门禁系统,可自动进出
• 独立的两车位车库(40平方米)+ 附带的三车位车库(50平方米),并安装有电池维护系统
房屋家具齐全,设备齐全。
该别墅最初建于20世纪70年代,为一栋半独立式住宅,于2012年进行了全面翻新,配备了现代化的电子系统和豪华设施。花园可从主起居/休息区以及楼下的康体中心直接进入。
高高的混凝土围栏确保了地块的界限,并在花园和俯瞰城市的宽敞阳台上提供最大的私密性。
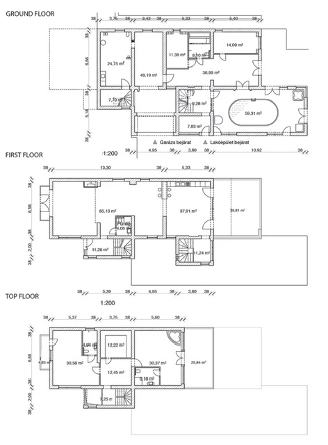
底层(254平方米):
• 楼内设有三车位车库
• 健康设施:带紫外线过滤装置的室内恒温泳池、按摩浴缸、芬兰桑拿和红外线桑拿、日光浴室
• 健身房、休闲区、电影室(250厘米屏幕、高级投影仪、6.1声道音响系统)
• 落地玻璃幕墙,可直接通往花园
二层(146平方米 + 40平方米露台):
• 全景露台,配备户外电视和燃气烧烤炉
• 现代定制嵌入式厨房(配备两台冰箱)、早餐吧、可容纳12人的圆形餐厅
• 宽敞的客厅,配有真皮沙发、Noguchi餐桌、Bang & Olufsen音响系统
• 壁炉、带勒·柯布西耶家具的休息室
上层(92 平方米 + 35 平方米露台):
• 主卧带按摩浴缸,视野开阔
• 189 厘米 4K 电视,配备 Philippe Starck 音响系统
• 内置镜面衣柜
• 共用走廊,带酒吧区
• 两间卧室,均配有独立卫生间、地毯和电动百叶窗
花园和户外空间:
• 精心维护的超大花园,配备自动灌溉系统和壁炉
• 独立的双车位车库
• 高高的混凝土围栏,最大程度保障私密性
这栋设计优雅、精心设计的别墅是真正的现代绿洲,提供尊享的生活方式
靠近布达佩斯市中心,却又环境清幽
學校:
購物:
