....在安靜的死街...在公共交通方便到達的地方...
....兩棟房子,一大塊,無數的可能性...
....無論是居住或商務,或同時在一處...
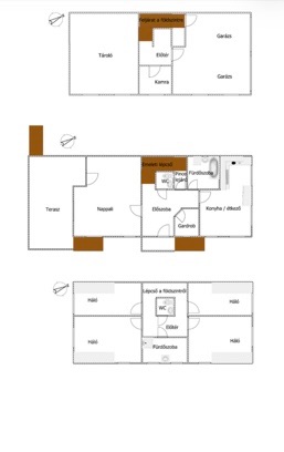
第 18 區,位於 Pestszentlőrinc 最受歡迎的地區,位於 Miklóstelep 中心,靠近 Haladás街道,在一條安靜的小路上,沒有過往車輛,一處 726 平方米的獨特房產綜合體正在出售,地塊上配備了所有公用設施。這種地塊面積在該地區很少見,有兩棟完全獨立的房屋,官方認為它們是兩個住宅單元 - 因此水電費折扣是有保證的。兩棟房屋共用暖氣和熱水系統,但可以單獨進行熱量測量。
這些房產既可以鄰近,又可以為家庭提供獨立的生活。
花園整潔,260 平方米的優質鋪路以及自動花園和車庫門提供舒適感。該地塊上還有可能進行額外的建設。
大房子(主樓):
181平方米,朝南,建於1989年。
佈局方面:4間臥室和一個帶露台的24平方米巨大客廳將滿足所有需求。室內空間可自由變化,閣樓空間可額外擴大40平方公尺。
靈活性:
內牆(樓梯和水塊除外)可以移動,因此平面圖可以完全根據您的需求量身定制。
現代化:2004年,對屋頂和立面進行了隔熱處理,並於2022年安裝了全新的冷凝鍋爐和煙囪系統。
額外設施:兩層空調、木門窗、連接遠端監控的警報系統。
小房子:
它有一個 59 平方米的現代化客廳,配有美式廚房,目前有 2 間臥室,但也可以輕鬆改造成 3 間臥室。非常適合祖父母、成年子女或辦公室。
附衛浴的浴室、現代塑膠門窗。
客廳和臥室的2台冷暖空調增加了舒適感。
小屋還可通往 4X4 地窖。
位置與環境:
距離「Szarvascsárda」廣場僅 1 個巴士站,可輕鬆抵達一切地方:
步行距離:市場、雜貨店、餐廳、醫生辦公室、警察、體育設施。
教育: 附近有優秀的學校,包括全國最好的雙語高中之一。
交通:大眾運輸便利,花園城市寧靜。
停車位:地下車庫2個車位,自動門及地面停車位
該房產等待新主人,所有權有序,沒有訴訟和產權負擔。
對於注重品質和位於中心但安靜的位置的大家庭、夫婦或投資者來說,這是一個理想的選擇。
學校:
購物:
