位於II/A區,Rákóczi街和Zrínyi街交匯處,一套佔地965平方米的六室(另加一間)家庭住宅現正出售,淨居住面積320平方米(不含雙車位車庫),適合大家庭居住。歡迎訪問我們的網站,查看更多房源信息,包括我們正在建設中的房屋、以往的案例、詳細的技術說明和平面圖。 www.whpg.eu
該房產的主要參數如下:
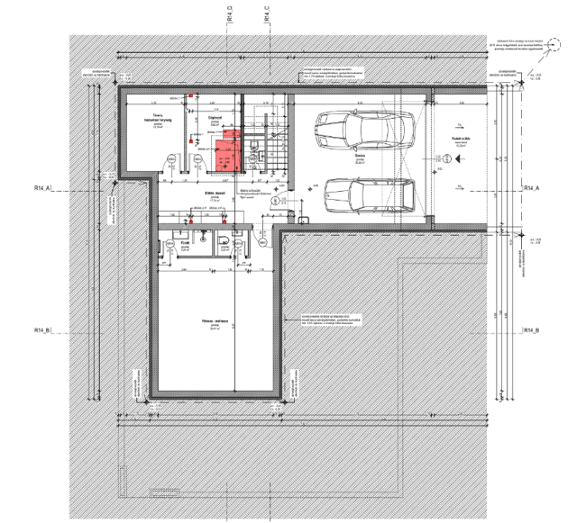
佔地面積965平方公尺。
淨居住面積320平方米,另加:
40平方公尺雙車位車庫、40平方公尺雙車位車道、寬敞的露台和陽台。
75平方公尺的客廳、廚房和餐廳,以及與之相連的半遮蓋式露台。
客廳樓上設有5間獨立的起居室、5間浴室、13平方公尺的衣帽間以及獨立的客用衛生間。
Cifre、Arkana 和 Vallelunga 冷地板,膠合木地板。
140 平方米地下室,包括 10 平方米設備房、10 平方米雜物間、40 平方米車庫、30 平方米樓梯/通道/儲藏室,以及一個超過 40 平方米的可自由配置房間,為您提供發揮創意的空間。無論是配備 5.1 聲道系統的影音室、健身房或水療中心(已預約空間),甚至是獨立衛浴的休閒娛樂室,都能滿足您的需求。
完全獨立的父母套房,配有衣帽間和寬敞優雅的浴室。
花園:泳池預留位置與露台齊平,因此未來建造泳池可最大限度地減少施工量和場地佔用。
週邊環境:附近有多所學校,包括古斯塔夫·艾菲爾法國幼兒園、小學和中學、克萊伯斯貝格·庫諾小學和中學、兒童之家、華德福學校以及布達佩斯美國國際學校,後者位於納吉科瓦奇街入口處,距離房產不遠。
附近還有診所、HÜVI服務中心和其他購物場所。
喜歡運動的人士可以前往附近的波科爾尼約瑟夫體育休閒中心,那裡設施齊全,包括網球、跑步、足球場以及戶外訓練場地。運動場附近便是吉亞爾馬蒂·德熱游泳池 (Gyarmati Dezső游泳池),內設一個 10 泳道 50x25 米的室內比賽泳池、一個 20x10 米的訓練泳池和一個 33x20 米的室外泳池。此外,新開放的社區公園也位於附近。
該物業交通便利,可輕鬆搭乘大眾運輸工具。幾分鐘即可到達胡斯沃吉中心 (Hűvösvölgy中心),從那裡乘坐電車很快就能到達塞勒·卡爾曼廣場 (Széll Kálmán空間)。
如果您對此感興趣,期待您的來電!
學校:
購物:
