位于布达佩斯最优雅的地区之一,位于第二区宾博街,出售一套新建的豪华全景式公寓,属于宾博公寓,包含客厅和四间卧室,预计于2025年第四季度竣工。
该房产采用最优质的材料和最先进的技术建造而成。
配套设施包括:
- Stiebel Eltron 独立热泵地暖、吊顶供暖和吊顶制冷
- Stiebel Eltron 中央热回收家用通风系统
- 报警系统和开启传感器
- 三层铝木门窗
- 蚊帐
- 自动铝百叶窗
- Trespa 外墙饰面
- 木质室内门窗
- 高级饰面
- 高级卫浴设备
- Loxone 智能家居系统
- 内置 Wifi 系统
- 车库内配备独立电动汽车充电器
- 电梯
- 对讲系统
- Hörmann 车库门和室内门
- 绿色屋顶
- 带灌溉系统的古树园景花园
2400万福林(含2个停车位)和
800万福林(含1个储物单元)。
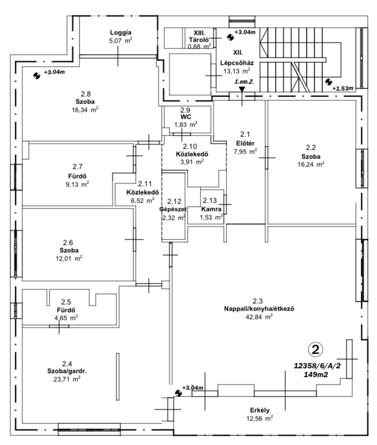
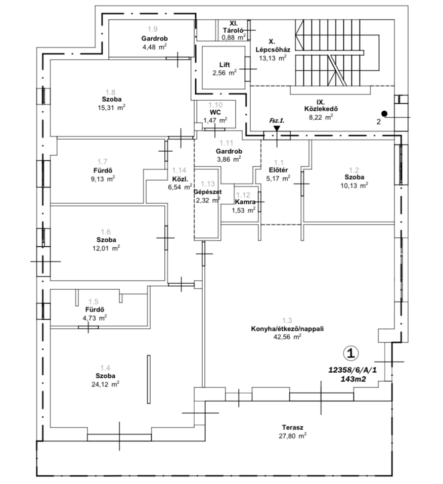
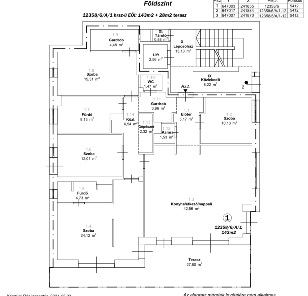
房产面积:净居住面积143立方米,
露台面积28平方米,
专属花园面积277平方米
4间卧室+客厅+2间浴室
储藏室和停车位位于负一层。
公寓配备 2 个停车位和 1 个储藏室。
客人可以提前安排参观该房产。
學校:
購物:
